Einzigartige Eigentumswohnungen im denkmalgeschützten Mödlinger Stadtdomizil

Erleben Sie Wohnen auf höchstem Niveau in einem einzigartigen, denkmalgeschützten Ambiente aus dem Jahr 1895 im Herzen von Mödling. Das imposante Eckgebäude wird derzeit umfassend revitalisiert – mit Liebe zum Detail, modernster Technik und hochwertigster Ausstattung.

Über 4 Meter Raumhöhe. Originalgetreu restaurierte Fassade. Stilvolle Altbauwohnungen und moderne Dachterrassenwohnungen mit Weitblick.
Diese Adresse ist mehr als nur ein Zuhause – sie ist ein Statement.

Altbau-Charme trifft moderne Eleganz

Nur wenige Schritte vom historischen Aquädukt entfernt beginnt hier das Leben in der Kirchengasse. Fußgängerzone, Cafés, Kurpark und Wienerwald vereinen hier Urbanität & Natur.

Öffentliche Anbindung:

  • Bahnhof Mödling fußläufig erreichbar
  • Direktverbindung nach Wien Mitte (ca. 30 Min)
  • Buslinien 264 & 265 in Gehweite
Lagebild Mödling
Gesicht

Das Projekt im Überblick

  • Denkmalgeschütztes Zinshaus von 1895
  • Wohnflächen von 49–140 m² (2–4 Zimmer)
  • KFZ-Stellplätze für ausgewählte Wohnungen
  • Komplett kernsaniert
  • Edle Materialien
  • Lift vom Keller bis DG
  • teilweise Balkone/Terrassen
  • überdurchschnittliche Raumhöhe von über 4m
Gesicht

Wohnungsübersicht

Top Etage Zimmer Wohnfläche (m²) Außenfläche (m²) Preis Status Plan
1/01EG259,837,20 (Terrasse)430.000 €Verfügbar Plan
1/02EG262,88/435.000 €Verfügbar Plan
1/03EG280,541,47 (Balkon)580.000 €Verfügbar Plan
1/04EG248,47/360.000 €Reserviert Plan
1/051. OG///465.000Verfügbar Plan
1/061. OG262,74/455.000 €Verfügbar Plan
1/07////VerkauftVerkauft Plan
1/08////VerkauftVerkauftPlan
1/092. OG263,22/475.000 €VerfügbarPlan
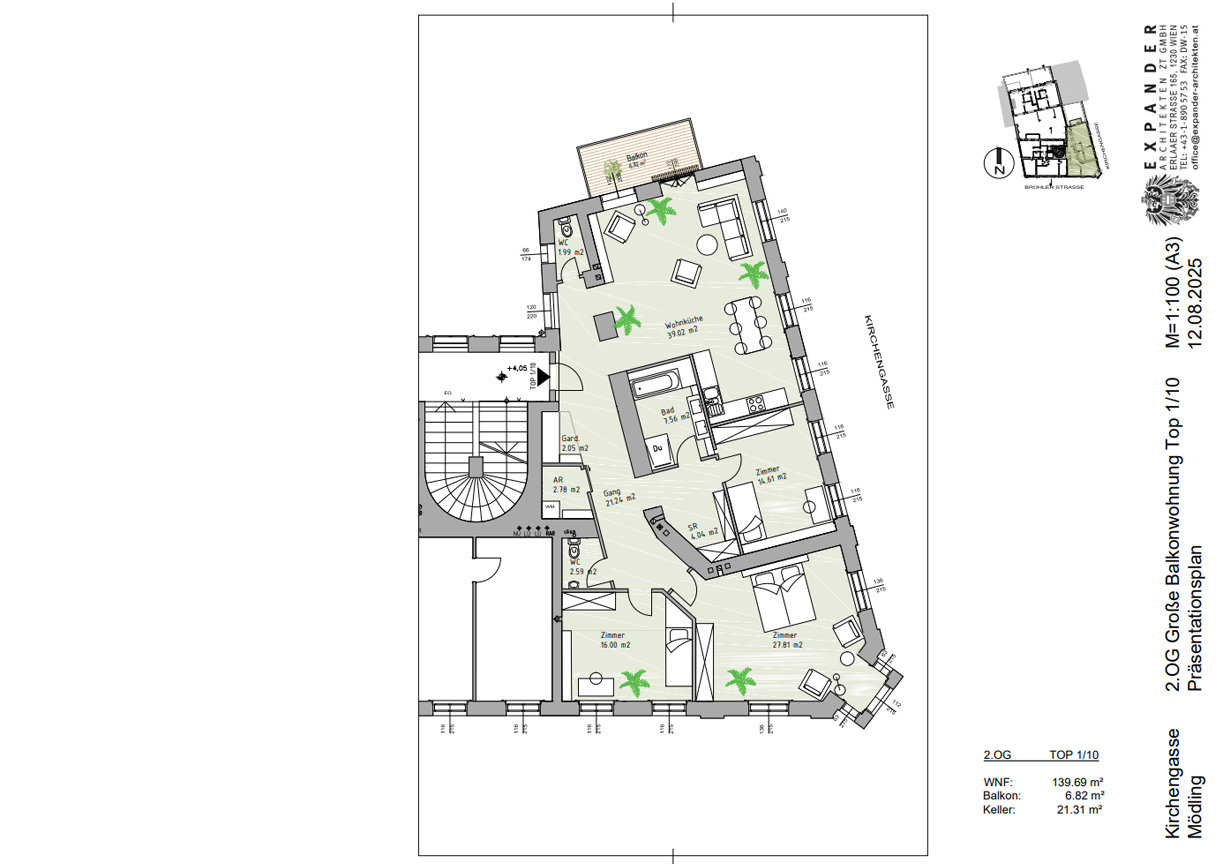
1/102. OG4139,696,82 (Balkon)1.150.000 €Verfügbar Plan
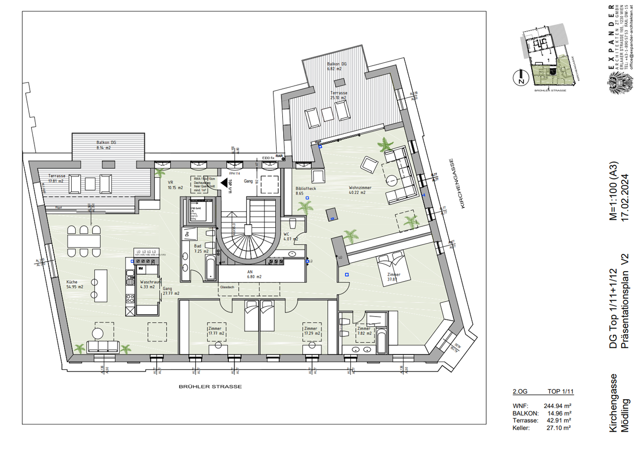
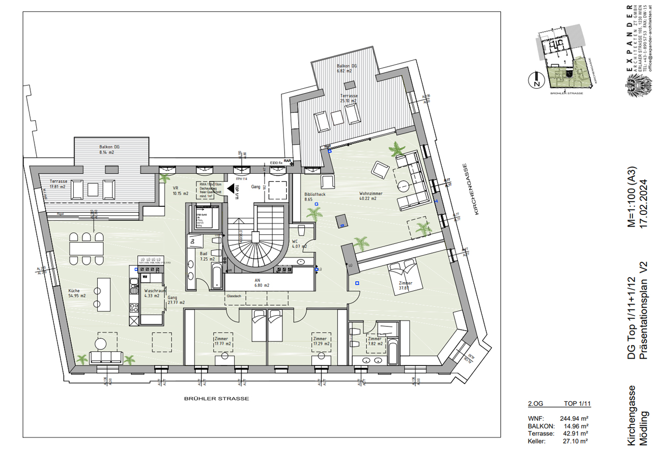
1/11DG3101,578,14 (Balkon) + 26,99 (Terrasse)1.150.000 €Verfügbar Plan
1/12DG3124,156,82 (Balkon) + 25,10 (Terrasse)1.250.000 €Verfügbar Plan
1/11 + 12DG5244,9414,96 (Balkon) + 42,91 (Terrasse)2.400.000 €Verfügbar Plan

*Möblierungsbeispiele*
Alle Visualisierungen dienen rein illustrativen Zwecken, sind nicht maßstabsgetreu und beinhalten keine verbindliche Ausstattungszusage

Ausstattung & Highlights

  • hochwertige Parkettböden
  • 4+ Meter Raumhöhe
  • Fußbodenheizung mit Wärmepumpe
  • Großformatige Fliesen in den Bädern
  • Tischler-Holzfenster nach Original
  • Restaurierte Fassaden mit Beleuchtung
  • Erkerwohnungen mit viel Licht
  • Durchdachte Grundrisse
  • Kellerabteil & Fahrradabstellraum
  • teilweise Balkone/Terrassen
Ausstattungsbeispiel

Lageplan

Aktueller Baustatus & Besichtigung

Kurz vor Fertigstellung

Geplante Fertigstellung:

Altbauwohnungen: Herbst 2025
Dachgeschoss & Allgemeinflächen: Anfang 2026

Besichtigung nach Terminvereinbarung mit
Jutta Fischer & Alina Strobl

Jetzt Exposé anfordern

Ihre Ansprechpartnerinnen

Jutta Fischer-Ledholder
Jutta Fischer-Ledholder, MSc

Telefon: +43 676 834 34 816

E-Mail: fischer@rustler.eu

Alina Strobl
Alina Strobl, MA

Telefon: +43 2236 908 100 674

E-Mail: astrobl@rustler.eu

Bild 1
Bild 2
Gesicht